`` syntax architektur • klosterneuburg
Projekte

Licht Blick

Kahlenberger Straße 71, 1190 Wien 48°15'31.8"N 16°21'05.5"E

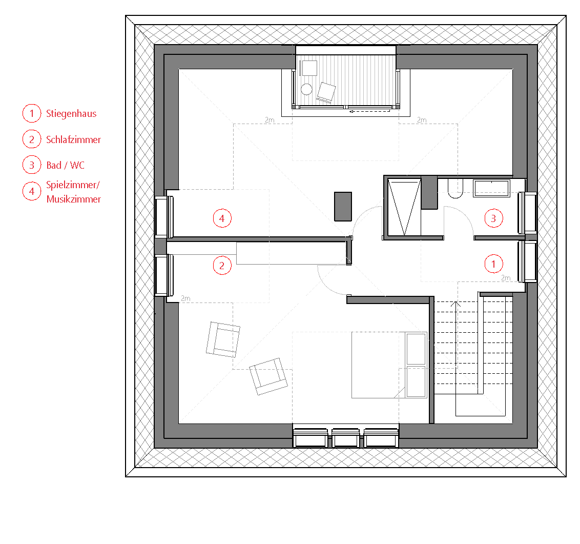
Die Generalsanierung des Hauses aus den 1930er Jahren musste, da es sich um ein Objekt im Grünland handelt, innerhalb des bestehenden Volumen erfolgen. Lediglich im Zuge des Ausbaues des Dachbodens durften Gauben das bestehende Volumen erweitern. Ziel war es, möglichst viele historische Elemente zu erhalten, und dennoch eine weitestgehende Öffnung zum Garten und ein offenes Raumkonzept zu erzielen. Aus einem introvertierten, konservativ angelegten Grundriss, wurde ein lichtdurchflutetes zum Garten hin offenes, fließendes Raumgefüge. Charakteristische Elemente, wie die Kastenfenster mit ausstellbaren Holzrollo, die hölzerne Treppe und die Falttür im Wohnzimmer wurden restauriert und gängig gemacht. Das Haus wurde gedämmt, und haustechnisch am neuesten Stand gebracht. Statt Ölkessel und Radiatoren sorgen jetzt Wärmepumpe und Fußbodenheizung für wohlige Wärme.